Ort: Schönaich
Leistungen: LPH 5
Bauherr: keine Angabe
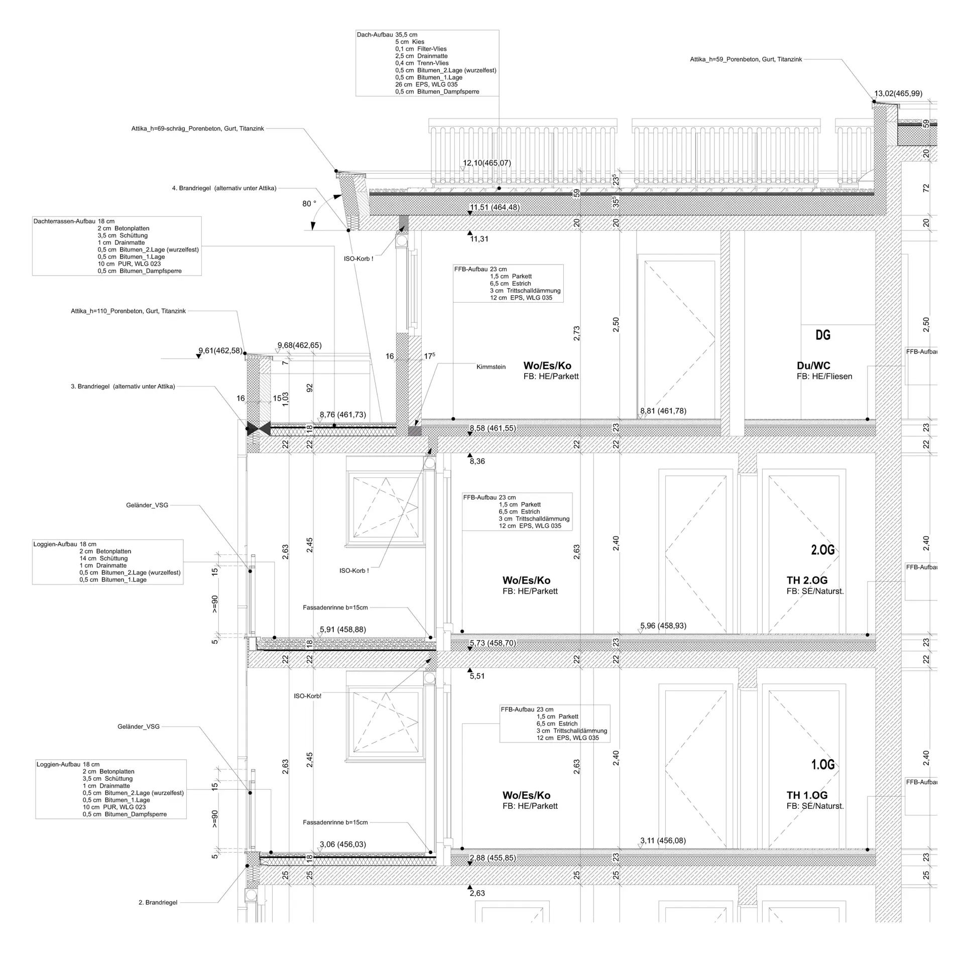
Das Erstellen von Werkplänen mit Konstruktion- und Detailzeichnungen ist das Herzstück eines jeden Projekts. Es ist die entscheidende Phase für den weiteren erfolgreichen Prozessablauf. Wir stellen uns gerne dieser Herausforderung. Unter Berücksichtigung des Entwurfgedankens und in enger Abstimmung mit externen Fachplanern werden die Voraussetzungen für einen reibungslosen Bau geschaffen.





